Хороший проект одна из главных задач для качественной постройки Вашего дома. Чем подробнее и продуманней проект, тем легче, проще и качественней строители воплотят его в жизнь.
У Вас есть красивая картинка будущего дома с планом этажей или чертеж от руки, сделанный на коленке. На основании Ваших потребностей и желаний я разработаю для Вас Эскизный проект и Конструктивный раздел в умеренные сроки.
Самое главное, что дает проект - это экономия на излишках материалов, так как все элементы подобраны, а нагрузки рассчитаны. Это даст вам уверенность в том, что через несколько лет дом не "поплывет", а стены не "разойдутся" и вам не придется проводить дорогостоящую реконструкцию дома.
В проекте содержится перечень всех материалов, необходимых для строительства, с указанием их количества. На основании этого можно определить стоимость материалов, а также планируемые
объемы работ и оценить общую стоимость строительства.
Наличие проекта страхует Вас как будущего домовладельца от необоснованного увеличения стоимости и сроков строительства.
  • Цены
  • Порядок работы
  • Портфолио

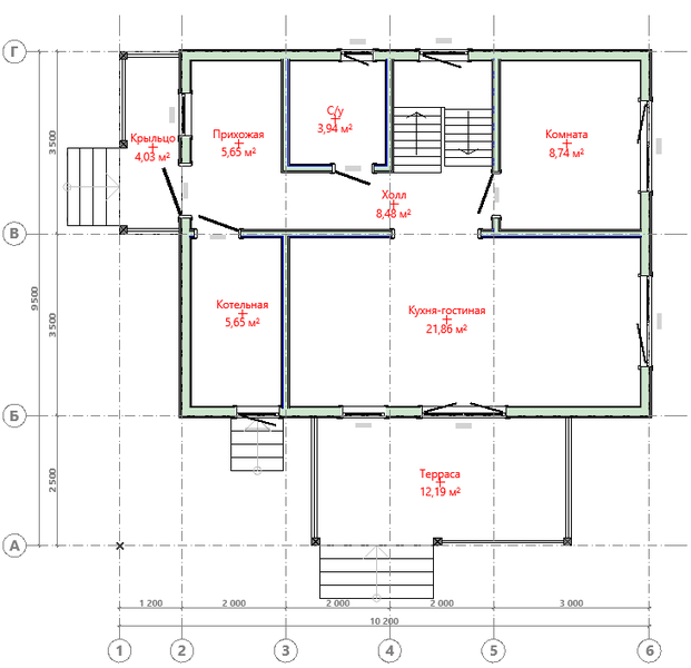
Двухэтажный дом площадью 158 м2

Мансардного типа, три спальни, раздельный санузел, котельная. Ленинградская область
image-1
image-2
image-3
image-4
image-5

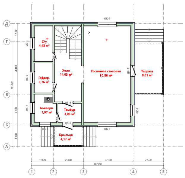
Двухэтажный дом площадью 194 м2

Мансардного типа, три спальни, котельная. Ленинградская область
image-1
image-2
image-3
image-4
image-5 +1

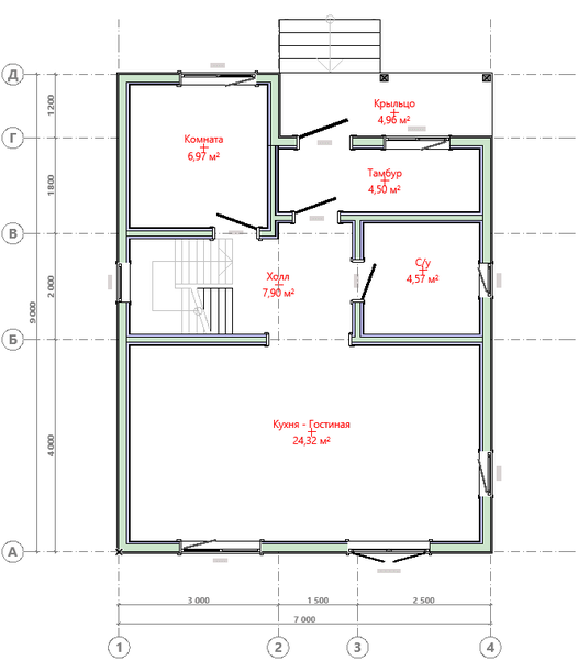
Одноэтажный дом площадью 98 м2

Дом с тремя спальнями, раздельным санузлом. Московская область
image-1
image-2
image-3
image-4
image-5

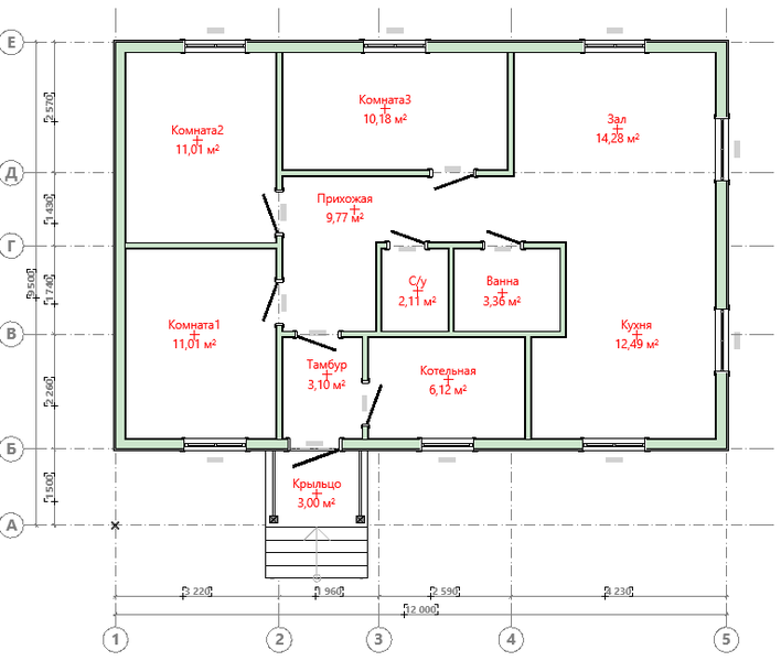
Двухэтажный дом площадью 123 м2

Классический дом в полноценные два этажа. Московская область
image-1
image-2
image-3
image-4
image-5 +1

Двухэтажный дом площадью 220 м2

Разноуровневая крыша, второй свет, окна в пол, мастер-спальня. Владимирская область
image-1
image-2
image-3
image-4
image-5 +1

Двухэтажный дом площадью 121 м2

Мансардного типа, с четырьмя спальнями. Смоленская область
image-1
image-2
image-3
image-4
image-5 +1

Одноэтажный дом площадью 66 м2

Разноуровневая крыша, две большие спальни. Ленинградская область
image-1
image-2
image-3
image-4
image-5

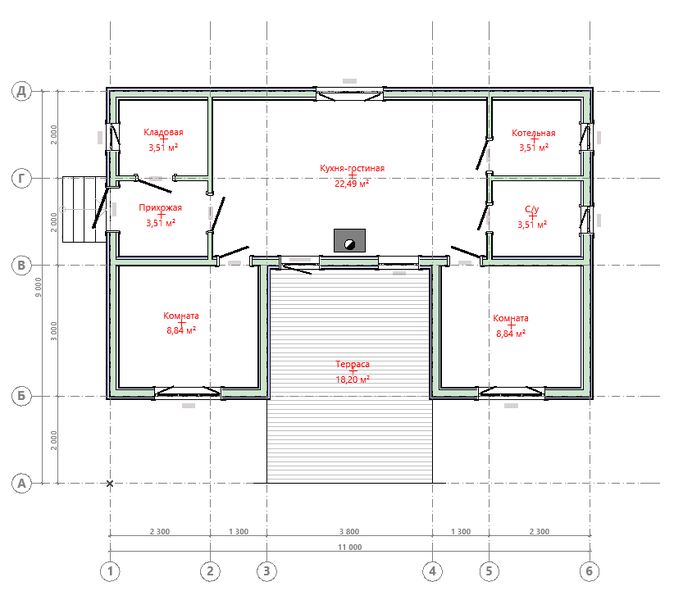
Одноэтажный дом площадью 104 м2

Дом с двумя спальнями и большая террасой, Ленинградская область
image-1
image-2
image-3
image-4
image-5
Хороший проект одна из главных задач для качественной постройки Вашего дома. Чем подробнее и продуманней проект, тем легче, проще и качественней строители воплотят его в жизнь.
У Вас есть красивая картинка будущего дома с планом этажей или чертеж от руки, сделанный на коленке. На основании Ваших потребностей и желаний я разработаю для Вас Эскизный проект и Конструктивный раздел в умеренные сроки.
Самое главное, что дает проект - это экономия на излишках материалов, так как все элементы подобраны, а нагрузки рассчитаны. Это даст вам уверенность в том, что через несколько лет дом не "поплывет", а стены не "разойдутся" и вам не придется проводить дорогостоящую реконструкцию дома.
В проекте содержится перечень всех материалов, необходимых для строительства, с указанием их количества. На основании этого можно определить стоимость материалов, а также планируемые
объемы работ и оценить общую стоимость строительства.
Наличие проекта страхует Вас как будущего домовладельца от необоснованного увеличения стоимости и сроков строительства.

zagorod-karkas.ru. Все права защищены© 2026

  • Главная
  • Цены
  • Порядок работы
  • Портфолио

Email: zagorod.karkas@yandex.ru, Тел: 8-921-184-61-46

  • Политика конфиденциальности
Сделано на Конструкторе сайтов Рег.ру