Цены
Порядок работы
Портфолио
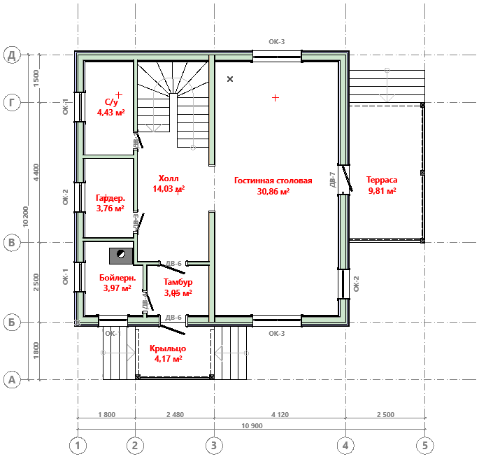
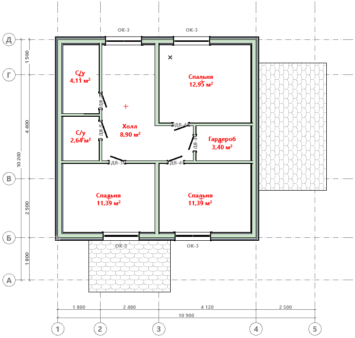
Мансардного типа
Дом №1
7900 ₽
Размеры 8.4Х8.4 м площадь - 158 м2
Заказать
Размеры 8.4Х8.4 м площадь - 158 м2
Сделано на Конструкторе сайтов Рег.ру