Цены
Порядок работы
Портфолио
Мансардного типа
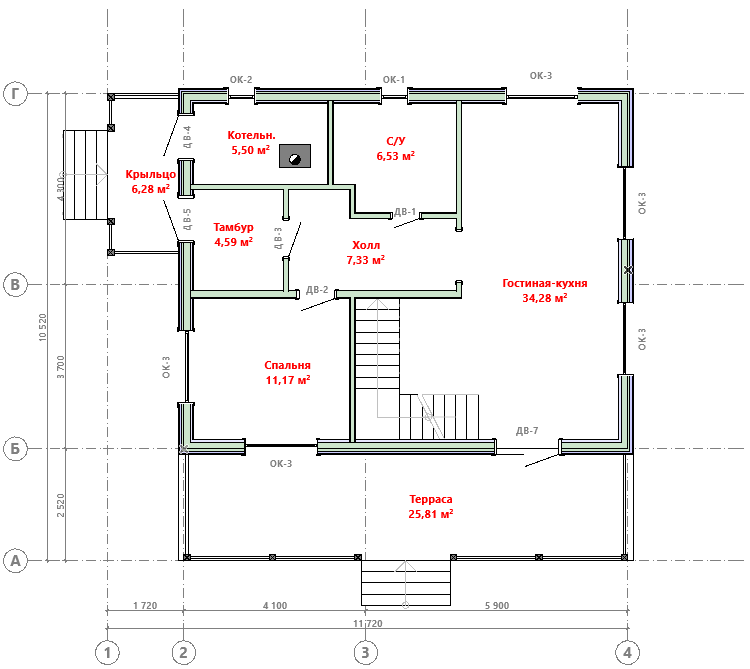
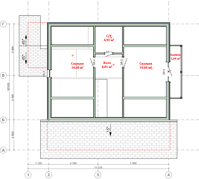
Дом №2
9700 ₽
Размеры 8.0Х10.0 м Площадь - 194 м2
Заказать
Размеры 8.0Х10.0 м Площадь - 194 м2
Сделано на Конструкторе сайтов Рег.ру